Royal Manitoba Theatre Centre
“The (Post) Mistress is about love, love letters and love of life.” – Tomson Highway
In the small town of Lovely, Ontario, every letter passes through the hands of postmistress Marie-Louise Painchaud. Cheeky and cheerful, Marie-Louise delights in living vicariously through the stories shared in letters mailed from all over the world. Featuring piano and saxophone, the musical stylings evoke these faraway places – samba, bossa nova, tango, Dixieland and Berlin Cabaret rap. Uplifting, funny and poignant, this one-woman musical by Tomson Highway (Dry Lips Oughta Move to Kapuskasing, The Rez Sisters) reminds us that in life, you should never mail it in.
Director ………………………………………………………………………….Simon Miron
Music Director …………………………………………………………………Naomi Woo
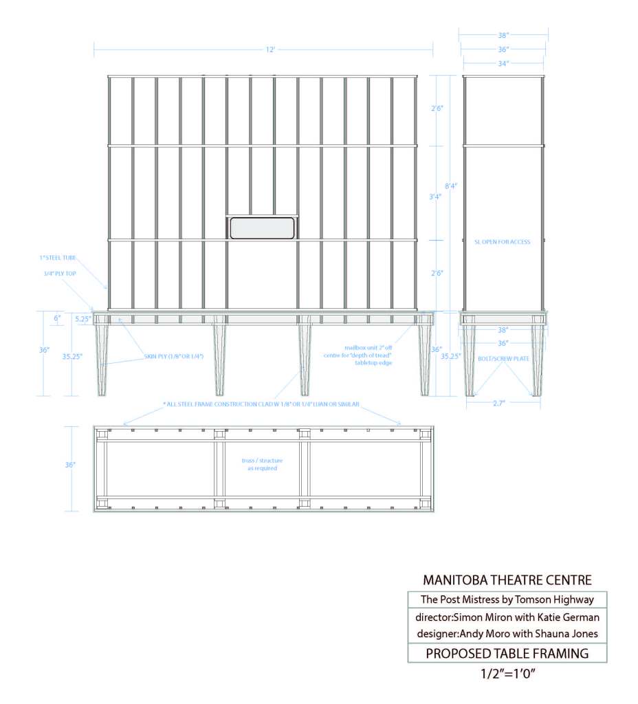
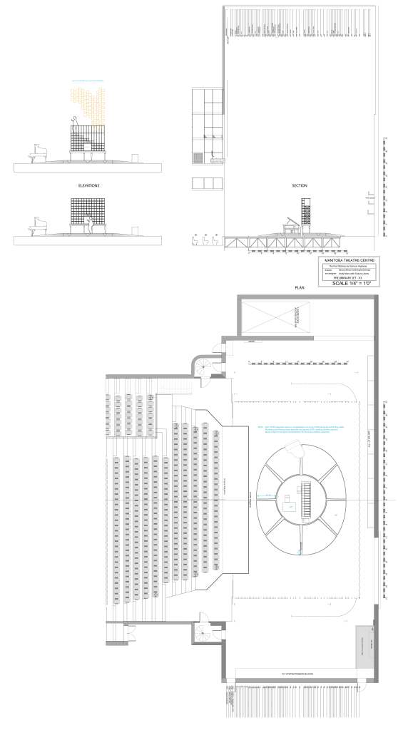
Set Designer …………………………………………………………………Andrew Moro
Costume Designer ………………………………………Andréanne Dandeneau
Lighting Designer ………………………………………………………….Larry Isacoff
Sound Designer …………………………………………………………….Chris Coyne
Assistant Director ……………………………………………………….Katie German
Assistant Set Designer ………………………………………………..Shauna Jones
Stage Manager……………………………………………………………….Kathryn Ball
Assistant Stage Manager ………………………………..Zoë Leclerc-Kennedy
Video Production …………………………………………………………..Frank Digital
THE CAST
Marie-Louise Painchaud ………………………………………..Krystle Pederson
MUSICIANS Tenor Saxophone ……………………………………….Neil Watson
Piano ……………………………………………………………………………….Naomi Woo
SETTING The post office in Lovely, a small town in francophone Northern Ontario. Friday, August 9, 1986, that is, a time before the internet, when people wrote letters on paper, frequently by hand and sent them by post.



















